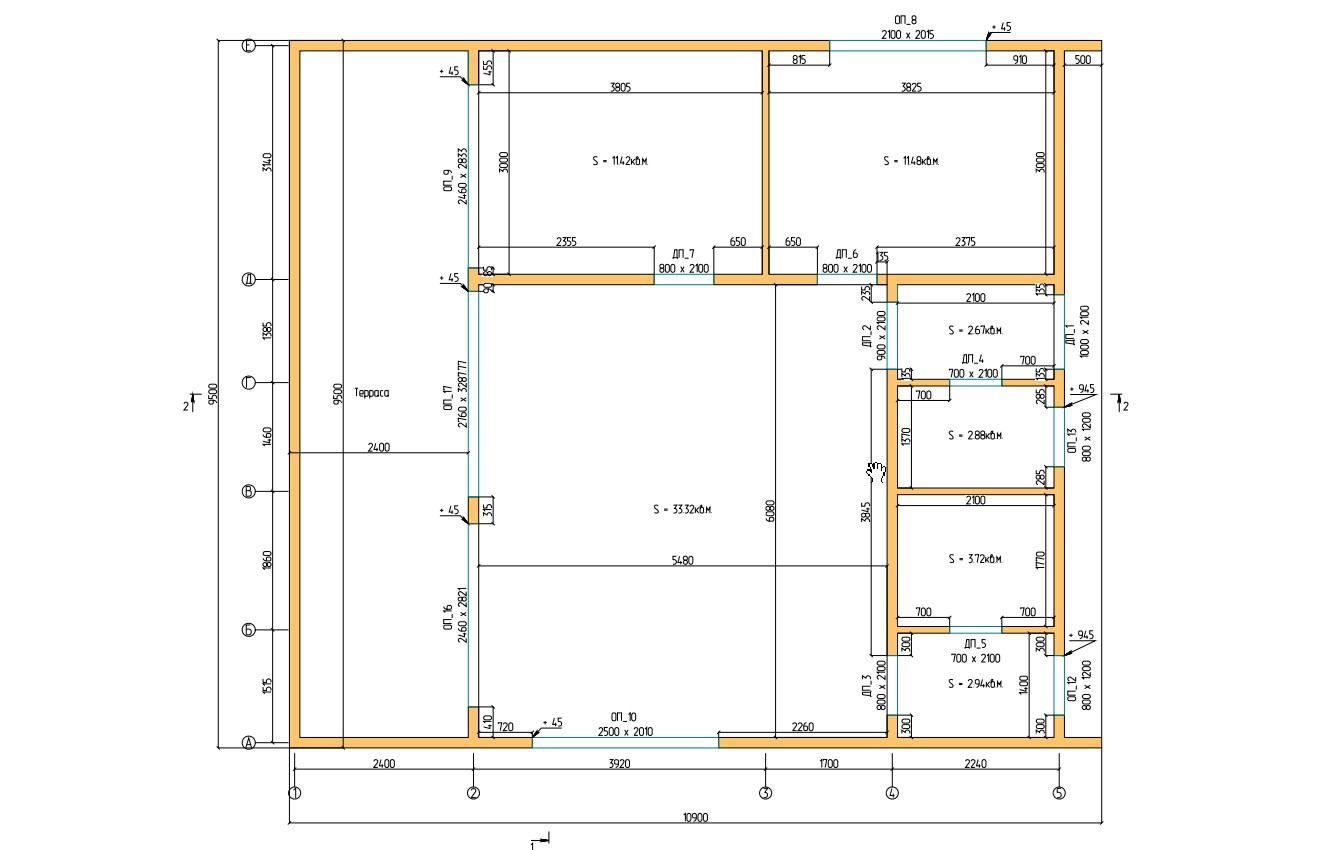
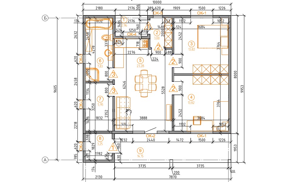
Комплектация
- Комплектация «Домокомплект»:
- Проектная документация для самостоятельной сборки.
- Полный проект АР (архитектурное решение) и КР (конструктивное решение) с поэтапными частями сборки.
- Домокомплект из СИП панелей (изготовленного в заводских условиях паз панелей 50 мм под брус 95 х 95, 95 x 145, 95 x 195): цокольное перекрытие, наружные стены, перегородки, межэтажные и кровельные перекрытия из СИП панелей.
- соединительные изделия из сосны по проекту (сухие, строганные, обработанные огнебиозащитным составом), стропильные, обвязочные материалы из сосны по проекту (обрезная естественной влажности), по проекту обвязка фундамента, крепёжные элементы (по проекту, рассчитанные нашими сметчиками);
- Комплектация «Теплый контур»:
- Свайный фундамент;
- Крепежные элементы, монтажная пена, конструкционные саморезы, саморезы и т.д;
- Оконные системы;
- Кровельное покрытие;
- Входная дверь с терморазрывом;
- Монтажные работы;
- Дополнительно Вы можете приобрести у нас:
- Наружная отделка с монтажными работами;
- Электрика, вентиляция, водоотведение, водоснабжение, отопление;
- Внутренняя отделка;
- Уличные коммуникации;
- Заборы, откатные ворота.